Без % Продам велику 49м 1-ну квартиру ЖК Навигатор 2, дом здан (№ 213-208-922)
Ціна: 56 000 $

Коноплянська вул., 22-Б, Київ, Оболонський
Характеристики
| Ціна: | 56 000 $ |
|---|---|
| № об'єкта: | 213-208-922 |
| Кімнат: | 1 |
| Поверх: | 25 / 25 |
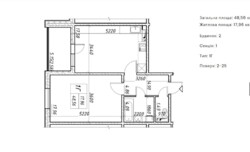
| Площа: | 49 / 18 / 18 м2 |
| Санвузол: | 1 роздільний |
| Балкон: | лоджія |
| Ексклюзив: | - |
Опис
Продам велику 1-ну квартиру на Оболоні, ЖК Навігатор 2, Коноплянська 22-Б
Будинок здан.
Перевага цієї квартири велика кухня 18м - мрія кожної господині. Тут вистачить місця для сімейних обідів, кухонного острова чи навіть міні-зони відпочинку. Кухня має вихід на лоджію 5м!
Квартира легко перетворюється в євродвушку за допомогою невеликого перепланування кухні.
Квартира має панорамний вид 25-го поверху — вечори з краєвидами столиці стануть особливими.
Загальна площа — 49 м², велика кімната 18 м² та затишна кухня 18 м².
Квартира має косметичний ремонт: охайні шпалери, лінолеум, сантехніка, міжкімнатні двері, лічильники, батареї.
Санвузол окремий. В ванній кімнаті є акрілова ванна, умивальник. В туалеті є унітаз та маленький рукомийник.
Сучасний утеплений будинок серії АППС-люкс з вентильованим фасадом.
На території ЖК: дитячий, спортивний майданчики, та майданчик для вигулу та дресування собак.
Власник погоджується продати по програмі єОселя.
Власник погоджується продати по програмі єВідновлення.
Податки навпіл.
Ціна 56000у.о.
Без комісії для покупця
























