Продаж чудової квартири з ремонтом на Москаленка 49 (№ 213-056-295)

Ціна: 50 000 $
Характеристики
| Ціна: | 50 000 $ |
|---|---|
| № об'єкта: | 213-056-295 |
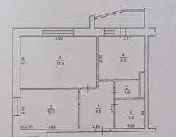
| Кімнат: | 2 розд |
| Поверх: | 17 / 25 |
| Площа: | 50 / - / 9 м2 |
| Ексклюзив: | - |
Адреса: Київська, Броварський, Бровари, Москаленка, 49
Продаж чудової квартири з ремонтом на Москаленка 49
На продаж пропонується чудова двокімнатна квартира на Москаленка 49 в новому будинку в ЖК Олімпійский.
Зроблений якісний євроремонт.
Вбудована кухня, диван, пральна машина, шафа купе, холодильник, бойлер, меблі та техніка залишаються.
Охайний під'їзд, є конс'єрж, планується встановлення генератора.
Чудова інфраструктура, спокійний район, поруч зупинка транспорту, дитячий майданчик , магазини, дитячий садочок.















